Жилой комплекс строится в едином архитектурном стиле “BAUHAUS”
Компания выполняет наряду с классическим сервисом и другие услуги. Такие как помощь няни, повара, поддержание дома в чистоте, заказ такси и билетов на мероприятия, клининг, работа садовника, услуга «я в отпуске».
Автоматизация домашних процессов на базе BAS-IP и «Алисы от Яндекс». На основании этой базы могут быть подключены функции управления домом
скачать презентациюАвтоматическое открытие шлагбаума, на основании распознания номеров автомобилей; возможность предоставления гостевого доступа; IP видеонаблюдение; умная система освещения улиц; раздельный сбор мусора; интеграция с сервисной управляющей компанией и системой «умный дом»
Свободное и лёгкое перемещение для родителей с колясками, безопасное движение для спортсменов на роликах и велосипедах. Жизнь в Omakulma Annino организована без препятствий: без лестниц, поребриков на съездах.
В Omakulma Annino заведены все городские коммуникации: газ, электричество, вода, канализация, видеодомофон BAS-IP, высокоскоростной интернет. В каждом доме установлен видеодомофон, подключённый к входной группе.
Низкоэтажная застройка открывает вид на перспективу благородного квартала, утопающего в изумрудной зелени летом и уютно припорошенного снегом зимой. Все инженерные системы проходят под землёй, включая линии электропередач. Перед вами только чистый горизонт. Лёгкая жизнь - жизнь в Omakulma Annino.
Территория комплекса закрыта от посторонних, а каждый дом имеет дополнительное ограждение. Система видеонаблюдения и охраны следит за порядком и безопасностью 24 часа в сутки.
В Omakulma Annino можно жить и работать, не выезжая за его пределы. На территории комплекса: магазин фермерских продуктов, ресторан, детский сад, школа, фитнес, SPA. Общественное пространство: пешеходные и велодорожки для прогулок, пруды, зоны барбекю, Workout, площадки для детей, площадка для собак, спортивное поле.
Свободная дорога на въезд и выезд. Жилой комплекс расположен вблизи главных магистральных дорог: КАД и ЗСД. Добирайтесь до центра Петербурга всего за 35 минут.
Экологически чистое место.
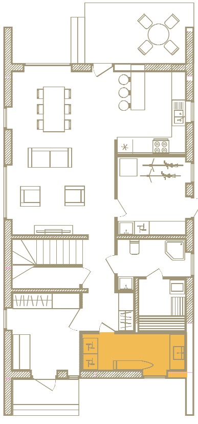
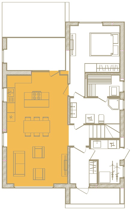
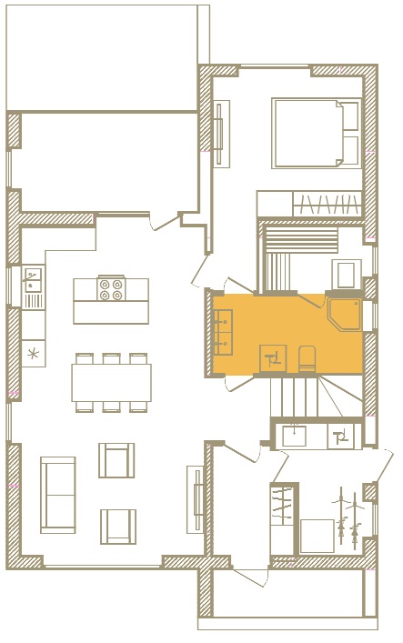
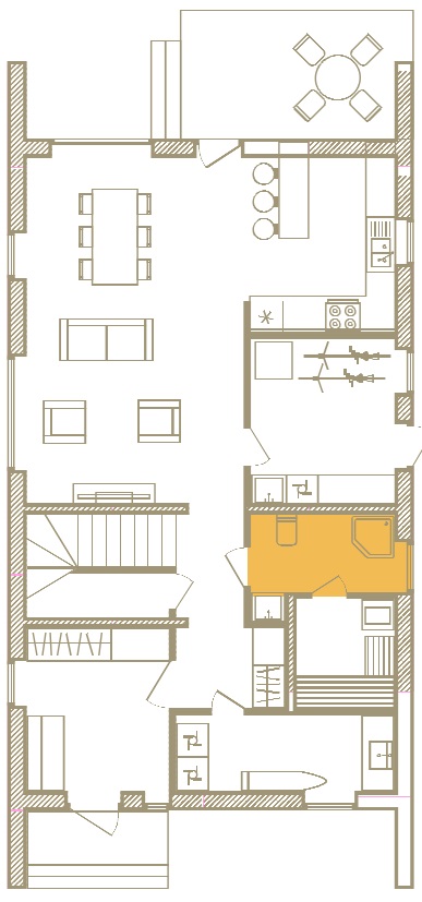
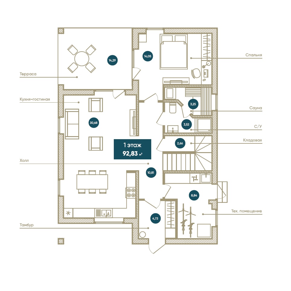
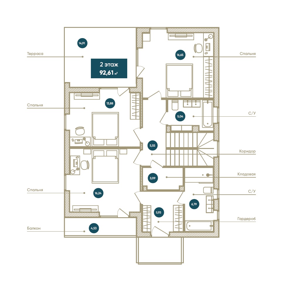
планировка
Устраивайте тёплый приём гостей и уютные вечера у камина. Панорамные окна и высокие потолки создают особенную атмосферу в доме.
Ваше личное пространство. Выход из спальни в отдельный санузел. Ниши для обустройства гардеробных в каждой спальне.
Финскому дому – финская сауна! Для здоровья, расслабления и стимуляции иммунитета в суровом северном климате.
Никаких очередей в душ по утрам. Ванные комнаты с окнами – максимум естественного света.
Храните инструменты, садовый инвентарь, велосипеды и многое другое, не загромождая домашнее пространство
Альтернатива погребу. Здесь вы сможете хранить овощи, фрукты, заготовки или организовать небольшой аналог винного погреба.
Ваше личное пространство. Выход из спальни в отдельный санузел. Ниши для обустройства гардеробных в каждой спальне.
Никаких очередей в душ по утрам. Ванные комнаты с окнами – максимум естественного света.
Проектами предусмотрены ниши для устройства гардеробных, или кладовых.
Альтернатива погребу. Здесь вы сможете хранить овощи, фрукты, заготовки или организовать небольшой аналог винного погреба.
Наслаждайтесь панорамными видами и свежим воздухом с собственной террасы. Можно оборудовать зону барбекю.
Фасад дома выполнен в современном стиле bauhaus, декорированный крашеным планкеном.
Фасад дома выполнен в современном стиле bauhaus, декорированный крашеным планкеном.
Фасад дома выполнен в современном стиле bauhaus, декорированный крашеным планкеном.
Фасад дома выполнен в современном стиле bauhaus, декорированный крашеным планкеном.
Устраивайте тёплый приём гостей и уютные вечера у камина. Панорамные окна и высокие потолки создают особенную атмосферу в доме.
Финскому дому – финская сауна! Для здоровья, расслабления и стимуляции иммунитета в суровом северном климате.
Никаких очередей в душ по утрам. Ванные комнаты с окнами – максимум естественного света.
Храните инструменты, садовый инвентарь, велосипеды и многое другое, не загромождая домашнее пространство
Альтернатива погребу. Здесь вы сможете хранить овощи, фрукты, заготовки или организовать небольшой аналог винного погреба.
Ваше личное пространство. Выход из спальни в отдельный санузел. Ниши для обустройства гардеробных в каждой спальне.
Никаких очередей в душ по утрам. Ванные комнаты с окнами – максимум естественного света.
Проектами предусмотрены ниши для устройства гардеробных, или кладовых.
Наслаждайтесь панорамными видами и свежим воздухом с собственной террасы. Можно оборудовать зону барбекю.
Фасад дома выполнен в современном стиле bauhaus, декорированный крашеным планкеном.
Фасад дома выполнен в современном стиле bauhaus, декорированный крашеным планкеном.
Фасад дома выполнен в современном стиле bauhaus, декорированный крашеным планкеном.
Фасад дома выполнен в современном стиле bauhaus, декорированный крашеным планкеном.
Устраивайте теплый прием гостей и уютные вечера у камина. Есть планировки со вторым светом, для ценителей пространства и свободы.
Финскому дому – финская сауна! Для здоровья, расслабления и стимуляции иммунитета в суровом северном климате.
Никаких очередей в душ по утрам. Ванные комнаты с окнами – максимум естественного света.
Храните инструменты, садовый инвентарь, велосипеды и многое другое, не загромождая домашнее пространство
Ваше личное пространство. Выход из спальни в отдельный санузел. Ниши для обустройства гардеробных в каждой спальне.
Никаких очередей в душ по утрам. Ванные комнаты с окнами – максимум естественного света.
Проектами предусмотрены ниши для устройства гардеробных, или кладовых.
Наслаждайтесь панорамными видами и свежим воздухом с собственной террасы. Можно оборудовать зону барбекю.
Фасад дома выполнен в современном стиле bauhaus, декорированный крашеным планкеном.
Фасад дома выполнен в современном стиле bauhaus, декорированный крашеным планкеном.
Фасад дома выполнен в современном стиле bauhaus, декорированный крашеным планкеном.
Фасад дома выполнен в современном стиле bauhaus, декорированный крашеным планкеном.
Устраивайте тёплый приём гостей и уютные вечера у камина. Панорамные окна и высокие потолки создают особенную атмосферу в доме.
Финскому дому – финская сауна! Для здоровья, расслабления и стимуляции иммунитета в суровом северном климате.
Никаких очередей в душ по утрам. Ванные комнаты с окнами – максимум естественного света.
Храните инструменты, садовый инвентарь, велосипеды и многое другое, не загромождая домашнее пространство
Альтернатива погребу. Здесь вы сможете хранить овощи, фрукты, заготовки или организовать небольшой аналог винного погреба.
Проектами предусмотрены ниши для устройства гардеробных, или кладовых.
Ваше личное пространство. Выход из спальни в отдельный санузел. Ниши для обустройства гардеробных в каждой спальне.
Никаких очередей в душ по утрам. Ванные комнаты с окнами – максимум естественного света.
Проектами предусмотрены ниши для устройства гардеробных, или кладовых.
Наслаждайтесь панорамными видами и свежим воздухом с собственной террасы. Можно оборудовать зону барбекю.
Фасад дома выполнен в современном стиле bauhaus, декорированный крашеным планкеном.
Фасад дома выполнен в современном стиле bauhaus, декорированный крашеным планкеном.
Фасад дома выполнен в современном стиле bauhaus, декорированный крашеным планкеном.
Фасад дома выполнен в современном стиле bauhaus, декорированный крашеным планкеном.
Устраивайте тёплый приём гостей и уютные вечера у камина. Панорамные окна и высокие потолки создают особенную атмосферу в доме.
Финскому дому – финская сауна! Для здоровья, расслабления и стимуляции иммунитета в суровом северном климате.
Никаких очередей в душ по утрам. Ванные комнаты с окнами – максимум естественного света.
Храните инструменты, садовый инвентарь, велосипеды и многое другое, не загромождая домашнее пространство
Альтернатива погребу. Здесь вы сможете хранить овощи, фрукты, заготовки или организовать небольшой аналог винного погреба.
Отдельное помещение для стирки, сушки и глажки белья. Вам не придется выделять место под стиральную машину в санузле
Ваше личное пространство. Выход из спальни в отдельный санузел. Ниши для обустройства гардеробных в каждой спальне.
Никаких очередей в душ по утрам. Ванные комнаты с окнами – максимум естественного света.
Проектами предусмотрены ниши для устройства гардеробных, или кладовых.
Фасад дома выполнен в современном стиле bauhaus, декорированный крашеным планкеном.
Фасад дома выполнен в современном стиле bauhaus, декорированный крашеным планкеном.
Фасад дома выполнен в современном стиле bauhaus, декорированный крашеным планкеном.
Фасад дома выполнен в современном стиле bauhaus, декорированный крашеным планкеном.
Террасная доска из древесно-полимерного композита (ДПК) для всех типов домов
Маркиза, противоударное трехслойное стекло триплекс с креплением на тросах
Организация внешнего освещения, установка розеток, установка фасадного освещения
Возможность организации теплой террасы
Строительство идет с опережением сроков. Дома первой очереди уже распроданы. Открыта продажа второй и третьей очереди.
Строительный консорциум настоящих профессионалов строительной отрасли Санкт-Петербурга с опытом работы более 10 лет.
Санкт-Петербург, Выборгское шоссе 32, корпус 2, офис 4
Режим работы отдела продаж:Ленинградская область, Ломоносовский район, д. Пески (Аннинское городское поселение)
Построить маршрутС радостью отвечу на все ваши вопросы в своем инстаграм профиле
Увеличить
показать планировку
Увеличить
показать планировку
Увеличить
показать планировку
Увеличить
показать планировку
Увеличить
показать планировку
Увеличить
показать планировку
Увеличить
показать планировку
Увеличить
показать планировку
Увеличить
показать планировку
Увеличить
показать планировку
Увеличить
показать планировку
Увеличить
показать планировку
Увеличить
показать планировку
Увеличить
показать планировку
Увеличить
показать планировку
Увеличить
показать планировку
Увеличить
показать планировку
Увеличить
показать планировку
Увеличить
показать планировку
Увеличить
показать планировку
Увеличить
показать планировку
Увеличить
показать планировку
Увеличить
показать планировку
Увеличить
показать планировку
Увеличить
показать планировку
Увеличить
показать планировку
Увеличить
показать планировку
Увеличить
показать планировку
Увеличить
показать планировку
Увеличить
показать планировку
Увеличить
показать планировку
Увеличить
показать планировку
Увеличить
показать планировку
Увеличить
показать планировку
Увеличить
показать планировку
Увеличить
показать планировку
Увеличить
показать планировку
Увеличить
показать планировку
Увеличить
показать планировку
Увеличить
показать планировку
Увеличить
показать планировку
Увеличить
показать планировку
Увеличить
показать планировку
Увеличить
показать планировку
Увеличить
показать планировку
Увеличить
показать планировку
Увеличить
показать планировку